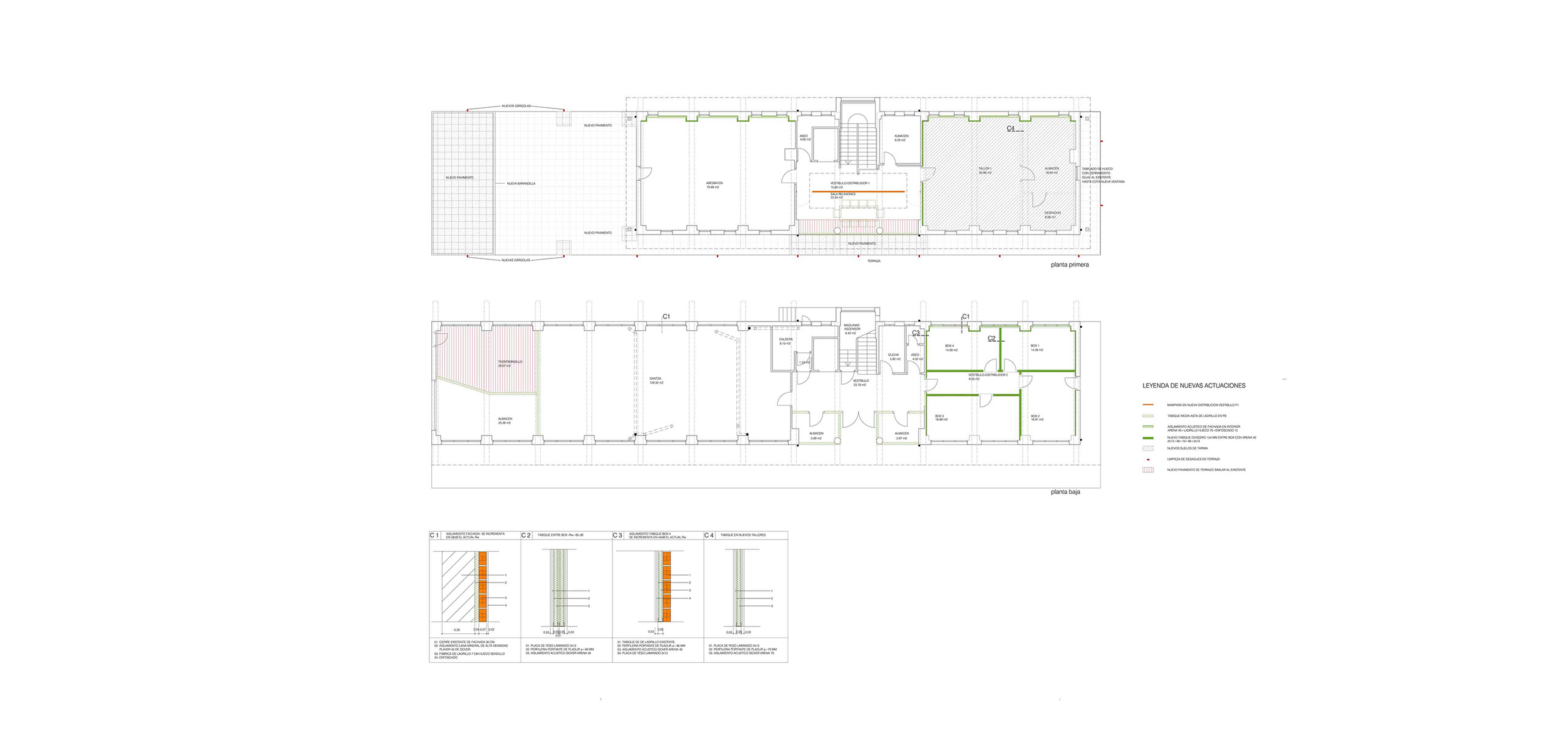
KOSTA TALLERRA

  • + INFO

    Location: Orio, Gipuzkoa

    Status:  Finalized 2010

    Program: building renovation. New cultural centre, workshops and music rehearsal spaces

    Team:  Carlos Abadías Banzo

    Client: City of Orio

    Budget: 318.918 €